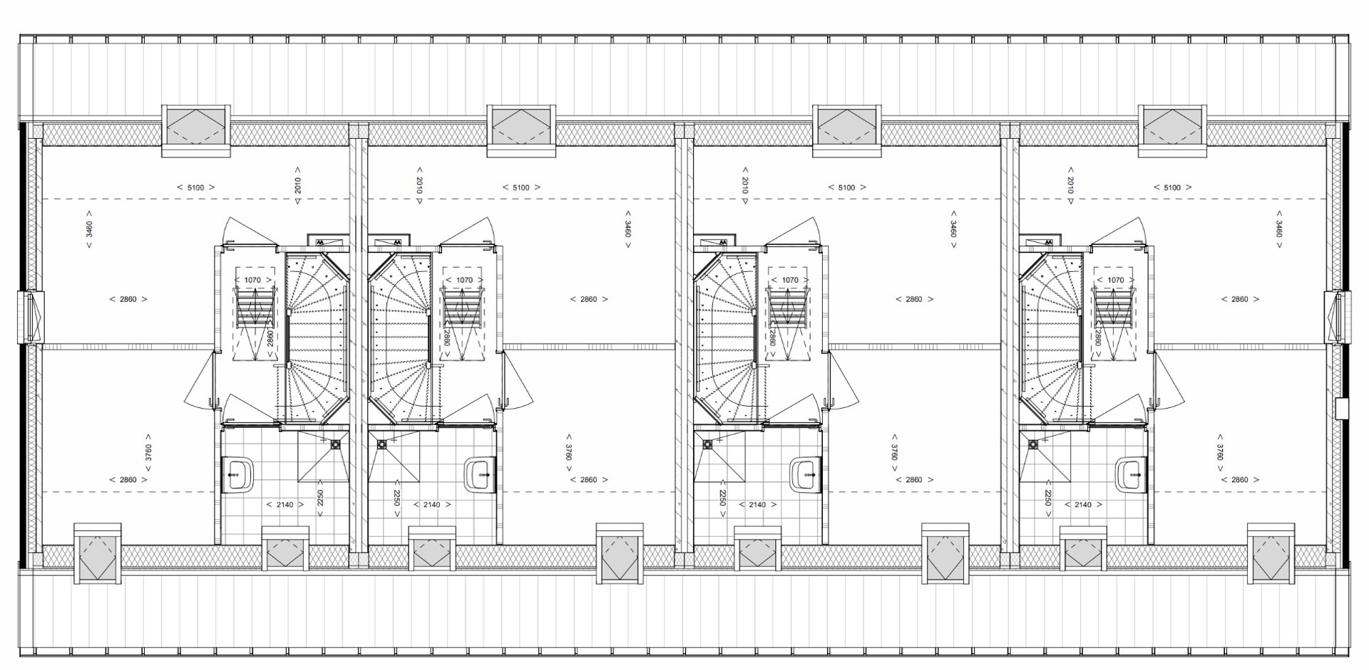
Plattegronden Bosplantsoen en MAD Bakkerstraat (Blok A, B en F)
Op deze pagina ziet u de plattegronden van de drie blokken. Blok A en B hebben twee slaapkamers en de woningen in blok F hebben drie slaapkamers.
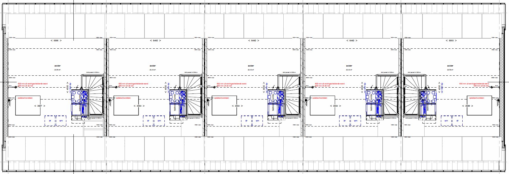
Plattegronden 2-slaapkamerwoningen Blok A en B
Boven

Zolder

Schuur

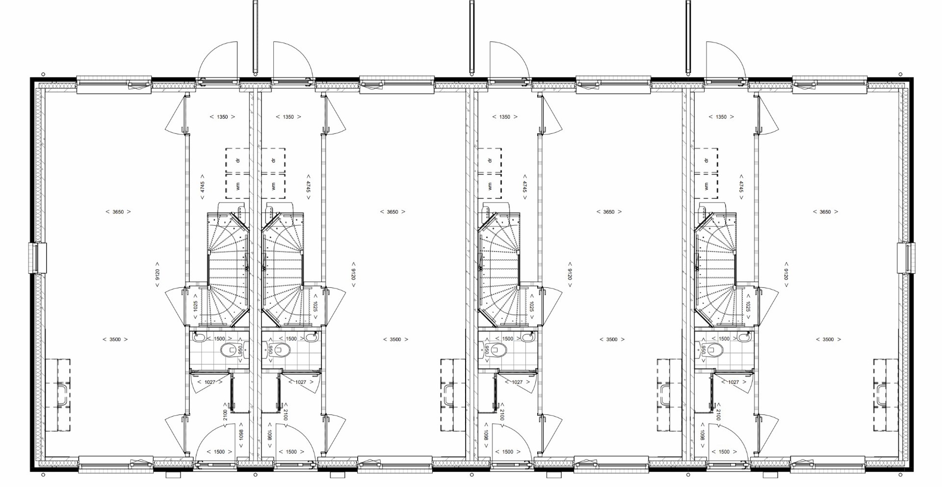
Plattegronden 3-slaapkamerwoningen Blok F
Beneden

Boven

Zolder

Schuur

